Zum Hauptinhalt springen
Startseite
Über uns
Leistungen
Projekte
Startseite
Über uns
Leistungen
Projekte
Kontakt aufnehmen
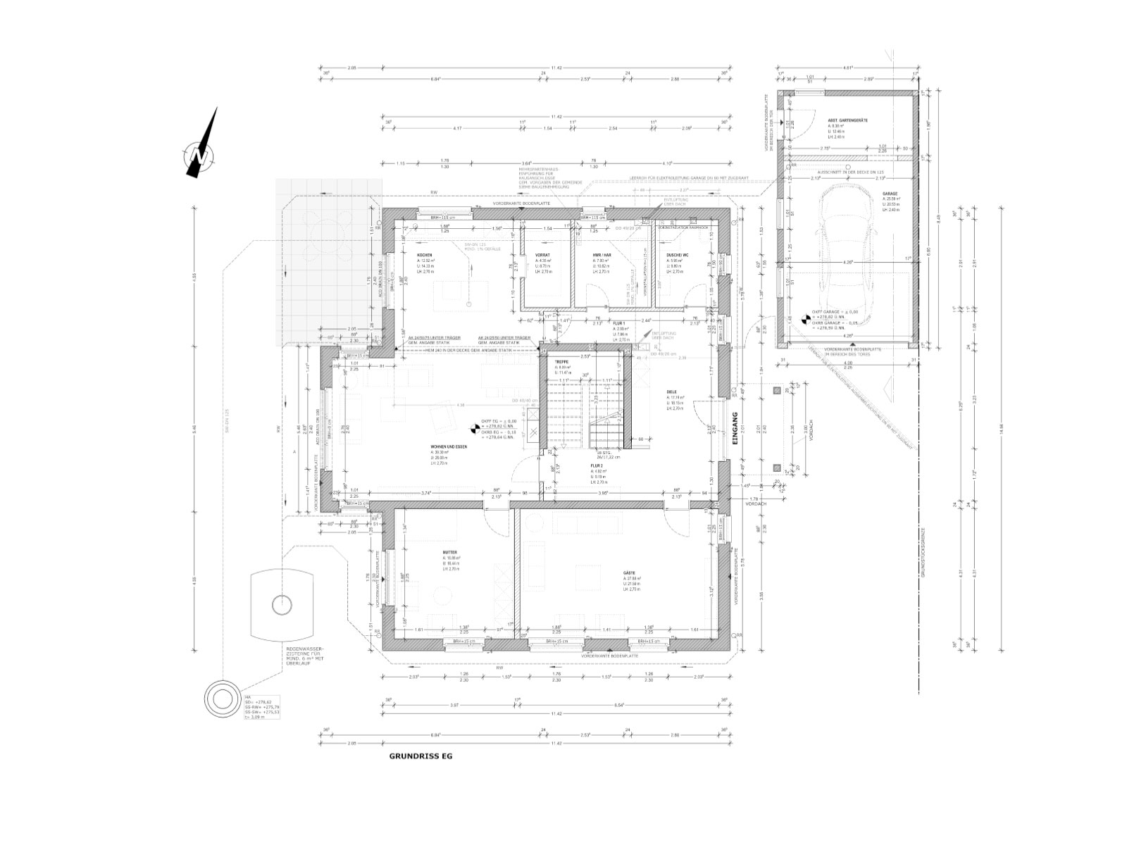
Einfamilienhaus
Neubau, Würzburg
Einfamilienhaus
vergrößern
vergrößern
vergrößern
vergrößern
vergrößern
vergrößern
vergrößern
vergrößern
vergrößern
vergrößern
vergrößern
Kontakt aufnehmen
SCHREIBEN
Sie
UNS ODER RUFEN
Sie
UNS GERNE AN.
Jetzt kennenlernen